Skip To Content

1044 Highway 54 W

Fayetteville, GA 30214
  • $2,000
  • STATUS: Active
  • ON SITE: 216 Days
  • MLS #: 10561001
UPDATED: 33 min ago
$2,000
  • 0
    BEDS
  • 2.3
    ACRES
  • 0
    BATHS
  • 0
    1/2 BATHS
  • 1,500
    SQFT
  • $1
    $/SQFT
Type:
Commercial-Lease
Built:
1991
County:
Area:

School Ratings & Info

Description

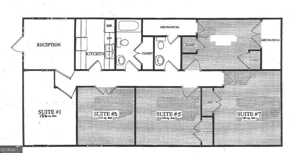
Office Space Available - 1044 Highway 54, Fayetteville, GA Now leasing approximately 1,500 RSF of professional office space with direct access to GA Highway 54 in the heart of Fayetteville. Built in 1991, this well-maintained property offers beautifully landscaped grounds and a welcoming business environment. Zoned O-I and located in Fayette County, the property is ideal for medical, professional, or service-based users. Lease Rate: $16.00/SF NNN Available Space: 1,500 RSF Zoning: O-I (Office-Institutional) Don't miss this opportunity to establish your business in a prime Fayetteville location!



Georgia MLS logo© 2026 Georgia Multiple Listing Service, Inc. All rights reserved. The data relating to real estate for sale or lease on this web site comes in part from GAMLS. Real estate listings held by brokerage firms other than The Realty Queen & Team | Keller Williams Realty are marked with the GAMLS logo or an abbreviated logo and detailed information about them includes the name of the listing broker. IDX information is provided exclusively for consumers' personal, non-commercial use and may not be used for any purpose other than to identify prospective properties consumers may be interested in purchasing. Information is deemed reliable but is not guaranteed accurate by GAMLS or The Realty Queen & Team | Keller Williams Realty. Data last updated: 2026-02-18T16:10:14.547.
www.therealtyqueen.com/homes/165939962
Print Image

1044 Highway 54 W Fayetteville, GA 30214

  • Price: $2,000
  • Status: Active
  • On Site: 216 Days
  • Updated: 33 min ago
  • MLS #: 10561001
0
Beds
0
Baths
0
½ Baths
2.3
Acres
1,500
SQFT
$1
$/SQFT
1991
Built
County:
Fayette
Area:
Fayetteville
Property Description
Office Space Available - 1044 Highway 54, Fayetteville, GA Now leasing approximately 1,500 RSF of professional office space with direct access to GA Highway 54 in the heart of Fayetteville. Built in 1991, this well-maintained property offers beautifully landscaped grounds and a welcoming business environment. Zoned O-I and located in Fayette County, the property is ideal for medical, professional, or service-based users. Lease Rate: $16.00/SF NNN Available Space: 1,500 RSF Zoning: O-I (Office-Institutional) Don't miss this opportunity to establish your business in a prime Fayetteville location!
Exterior Features

Attached Garage YN No Carport YN No Construction Materials Other Garage YN No Lot Features City Lot Lot Size Area 2.3 Lot Size Source Public Records Lot Size Units Acres Parking Features Parking Lot Road Frontage Type Highway Road Surface Type Paved

Interior Features

Above Grade Finished Area Units Square Feet Below Grade Finished Area Units Square Feet Building Area Total 1500 Building Area Units Square Feet Cooling Central Air Cooling YN Yes Heating Central Heating YN Yes Living Area Source Public Records Living Area Units Square Feet

Property Features

Electric On Property YN Yes New Construction YN No Property Condition Resale Property Sub Type CommercialOffice Rental Availability Date 2025-07-16 Sewer Other Structure Type Office Sublease No Utilities Electricity AvailableHigh Speed InternetPhone AvailableWater Available Water Source Other

GAMLS logo Listing provided courtesy of Randolph-Williams: 770-632-4000. © 2026 Georgia Multiple Listing Service, Inc. All rights reserved. Information Deemed Reliable But Not Guaranteed.


Georgia MLS logo© 2026 Georgia Multiple Listing Service, Inc. All rights reserved. The data relating to real estate for sale or lease on this web site comes in part from GAMLS. Real estate listings held by brokerage firms other than The Realty Queen & Team | Keller Williams Realty are marked with the GAMLS logo or an abbreviated logo and detailed information about them includes the name of the listing broker. IDX information is provided exclusively for consumers' personal, non-commercial use and may not be used for any purpose other than to identify prospective properties consumers may be interested in purchasing. Information is deemed reliable but is not guaranteed accurate by GAMLS or The Realty Queen & Team | Keller Williams Realty. Data last updated: 2026-02-18T16:10:14.547.
 
https://bt-photos.global.ssl.fastly.net/gamls/orig_boomver_1_10561001-2.jpg https://bt-photos.global.ssl.fastly.net/gamls/orig_boomver_1_10561001-2.jpg https://bt-photos.global.ssl.fastly.net/gamls/orig_boomver_1_10561001-2.jpg
Logo
The Realty Queen & Team | Keller Williams Realty
14 Old Roving Rd.
Cartersville GA, 30121